手術室潔凈設備
熱門新聞
- + 新疆喀什自動門安裝完成
- + 中效袋式空氣過濾器的種類及顏色區分
- + 潔凈手術室電動感應自動門的安裝方法?
- + 高效過濾器的安裝注意事項
- + 中效空氣過濾器的風速標準
- + 傳遞窗維修保養規程
- + 生物安全氣密門生產工藝
- + 手術室潔凈門需具備的特點
- + 冰凈醫療|2022年五一放假通知
- + 潔凈室鋼制醫用氣密門結構特點
- + 氣密門重要知識
- + 醫用電動氣密門的選擇注意事項
- + 正規廣東手術室氣密門廠家選擇方法
- + 潔凈氣密門使用時注意事項
- + 鋼制凈化氣密門哪家好
- + 凈化車間專用醫用氣密門的特點
- + 醫用潔凈氣密手動門怎么選擇
- + 自動氣密門有哪些配件組成
- + 手術室鋼制潔凈門質量標準
- + 手術室電動潔凈門哪家好

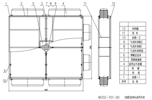
- 產品名稱 : 層流天花
- 生產產地: 廣東東莞
- 公司品牌: beajn/冰凈
- 發布時間: 2022-06-09
- 閱讀次數: 901
- 庫存配送: 支持全國送貨上門安裝
- 定制說明: 特殊要求按照實際情況或量身定制
- 特別說明: 產品圖片以及參數跟實際產品略有差異
產品描述
手術室層流天花的特點
層流天花是潔凈手術室、層流病房的凈化送風末端,它兼有高效過濾,均流及氣流補償作用
可廣泛應用于醫院潔凈手術室、潔凈病房、潔凈動物房等項目。
層流送風天花是采用空氣潔凈技術對微生物污染采取程度不同的控制,達到控制空間環境中空氣潔凈度適于各類手術之要求;并提供適宜的溫、濕度,創造一個潔凈舒適的手術空間環境。
層流送風天花分為:百級層流天花、千級層流天花、萬級層流天花
百級層流手術室是最為理想的。
手術室層流天花平面圖
手術室層流天花的技術參數
型號 | SS-I | SS-II | SS-III |
過濾效率 | 99.99% | 99.99% | 99.99% |
出風風速(m/s) | 0.45 | 0.3 | 0.23 |
外形尺寸 | 2600*2400*500 | 2600*1800*500 | 2600*1400*500 |
送風面尺寸(mm) | 2600*2400 | 2600*1800 | 2600*1400 |
法蘭尺寸 | 1000*200*4個 | 500*200*4個 | 320*200*4個 |
高效空氣過濾箱規格 | 1270*670*610(2個) | 1270*670*610(1個) | 670*670*610(1個) |
高效空氣過濾箱法蘭尺寸 | 800*500 | 800*500 | 800*500 |
空氣過濾器尺寸 | 610*610*295(4個) | 610*610*295(2個) | 610*610*295(1個) |
空氣過濾器類型 | |||
使用場合 | I級特別潔凈手術室 | II級標準潔凈手術室 | III級一般潔凈手術室 |
備注 | 材質:電解板、冷板噴塑、不銹鋼制作 |